Planta baja reformada en venta en el Cabanyal: Doble patio y 50 m² de salón en C/ Ramón de Rocafull
13, Carrer de Ramon de Rocafull, el Cabanyal - el Canyamelar, Poblats Marítims, València, Comarca de València, València / Valencia, Comunitat Valenciana, 46011, España
Planta baja reformada en venta en el Cabanyal: Doble patio y 50 m² de salón en C/ Ramón de Rocafull
13, Carrer de Ramon de Rocafull, el Cabanyal - el Canyamelar, Poblats Marítims, València, Comarca de València, València / Valencia, Comunitat Valenciana, 46011, España
495.000 €
Descripción
(Introducción)El Cabanyal ya no es el futuro de Valencia, es su presente más vibrante. Si llevas tiempo buscando una propiedad que combine la esencia marinera con una distribución moderna y diáfana, esta planta baja reformada en venta en el Cabanyal es la oportunidad que estabas esperando. Ubicada en la histórica Calle Ramón de Rocafull, esta vivienda rompe con los esquemas tradicionales ofreciendo algo casi imposible de encontrar en la zona: amplitud real y doble espacio exterior.
En un mercado saturado de viviendas “tubo” oscuras, presentamos un producto llave en mano diseñado para la luz. Esta propiedad es una rara avis: una planta baja reformada en venta en el Cabanyal a estrenar, con casi 50 metros cuadrados dedicados solo a la zona de día y dos patios privados. Gestionamos esta venta de forma directa, garantizando transparencia y agilidad. Si quieres saber más sobre nuestra experiencia gestionando activos singulares en la costa valenciana, puedes visitar nuestra sección de Quiénes Somos
1. Características Técnicas: Una distribución optimizada
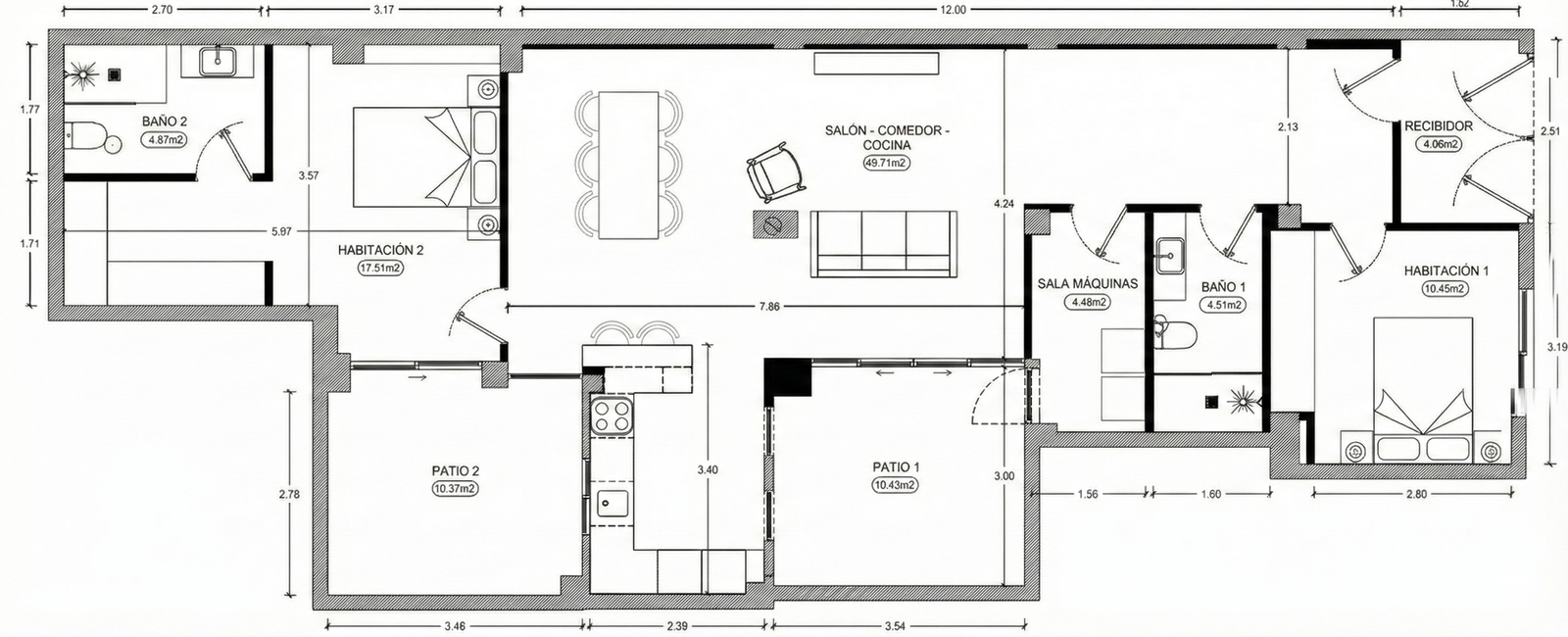
Al analizar el plano de esta vivienda, se percibe inmediatamente que la reforma ha priorizado la funcionalidad y la sensación de espacio. A diferencia de otras opciones en la zona, esta planta baja reformada en venta en el Cabanyal ha sido reconfigurada integralmente.
Hemos seleccionado esta propiedad por sus especificaciones de alto nivel, verificadas sobre plano:
Zona de Día de Impacto (50 m²): El corazón de la casa es un impresionante espacio diáfano de 49.71 m² que integra salón, comedor y cocina. Una amplitud propia de un loft neoyorquino pero en el Mediterráneo.
Doble Espacio Exterior: No cuenta con uno, sino con dos patios privados de más de 10 m² cada uno. Esto garantiza ventilación cruzada y luz natural en todas las estancias centrales.
Suite Principal Privada: Situada al fondo de la vivienda para máximo silencio, con 17.51 m² de superficie y baño en suite.
Zona de Servicios Independiente: Cuenta con una “Sala de Máquinas” de casi 4.5 m², perfecta para lavandería y almacenaje, manteniendo el ruido de los electrodomésticos fuera de la zona social.
2 Baños Completos: Distribuidos estratégicamente, uno de cortesía para la zona de día y otro privado dentro de la habitación principal.
2. Tour Virtual Escrito: Recorre la vivienda paso a paso
Planta baja reformada en venta en el Cabanyal
Gracias a la distribución detallada del proyecto, te invitamos a hacer este recorrido mental por esta espectacular planta baja reformada en venta en el Cabanyal.
Acceso y Habitacion
Al cruzar el umbral desde la calle Ramón de Rocafull, nos recibe un recibidor independiente de 4 m², ideal para dejar abrigos y zapatos, actuando como filtro de privacidad. Inmediatamente a la derecha encontramos la Habitación 1 (10.43 m²). Su ubicación junto a la entrada la hace perfecta como despacho profesional (para recibir clientes sin que pasen a la casa) o como dormitorio, segun las necesidades familiares
El Gran Salón-Comedor-Cocina (El corazón de la casa)
Planta baja reformada en venta en el Cabanyal
Llegamos a la joya de la vivienda: un espacio diáfano de casi 50 metros cuadrados. La cocina se presenta en concepto abierto, integrada en el salón para fomentar la vida social,
Desde la zona de cocina, tenemos acceso directo al Patio 2 (10.37 m²), con grandes ventanales que hacen muy luminosa la zona comedor y cocina. Imagina cocinar con la puerta abierta al patio, o desayunando al aire libre con total privacidad.
Además encontramos un baño completo de cortesía y la zona de lavandería independiente
La Suite: Silencio Absoluto
Planta baja reformada en venta en el Cabanyal
Al final del recorrido, en la zona más tranquila de la casa, se encuentra la Habitación 2 (Master Suite). Con sus 17.51 m², ofrece espacio de sobra para una cama King Size y armarios de gran capacidad. Cuenta con su propio baño privado de casi 5 m², creando un refugio de descanso totalmente aislado del ruido de la calle.
3. Ubicación Premium: La Calle Ramón de Rocafull
La ubicación lo es todo, y la Calle Ramón de Rocafull es una de las más estratégicas del distrito. Estás comprando una planta baja reformada en venta en el Cabanyal en una calle que conserva la tranquilidad residencial, pero que se encuentra a escasos metros del bullicio cultural.
Vida de Barrio y Servicios
Vivir aquí significa recuperar la vida de barrio. Tienes a un paso el famoso Mercado del Cabanyal, donde podrás comprar pescado fresco traído directamente de la lonja.
Además, la zona cuenta con:
Supermercados y Farmacias: A menos de 2 minutos caminando.
Colegios y Centros de Salud: Ideal si planeas vivir en familia.
Oferta Gastronómica: Desde las bodegas tradicionales como Casa Montaña hasta los nuevos restaurantes de vanguardia.
Conexión con la Playa y el Centro
Uno de los grandes atractivos de esta planta baja reformada en venta en el Cabanyal es su cercanía al mar. Estás a un breve paseo de la Playa de las Arenas.
Si necesitas desplazarte al centro de Valencia, la conexión es inmejorable. Tienes paradas de autobús de la EMT Valencia y la estación de tranvía muy cerca.
4. Análisis de la Reforma: Espacios que respiran
Planta baja reformada en venta en el Cabanyal
Muchos compradores temen las plantas bajas por la falta de luz. Sin embargo, el plano de esta vivienda demuestra una solución arquitectónica brillante. Al incorporar dos patios (uno central y otro posterior), la vivienda respira.
Adquirir esta planta baja reformada en venta en el Cabanyal te garantiza:
Ventilación Cruzada: Al abrir las ventanas de la fachada y las de los patios, se genera una corriente de aire natural que refresca la casa en verano, reduciendo la necesidad de aire acondicionado.
Luz Natural: Tanto la zona de paso como la cocina y el dormitorio principal reciben luz directa de los patios privados.
Aislamiento Acústico: Al situar la zona de día y la suite lejos de la fachada principal, el silencio es notable.
5. El Cabanyal como Inversión Inmobiliaria Segura
El distrito marítimo de Valencia ha experimentado una revalorización constante. Comprar una planta baja reformada en venta en el Cabanyal de estas dimensiones es una decisión financiera inteligente.
Perfil del Inquilino y Rentabilidad
Si tu objetivo es la inversión, esta distribución es perfecta para el alquiler de alto standing:
Nómadas Digitales: Buscan espacios grandes para trabajar (el salón de 50m² es ideal) y zonas exteriores (los dos patios).
Familias: Valoran tener la lavandería separada y dos baños completos.
Actualmente, es difícil encontrar una planta baja reformada en venta en el Cabanyal que supere los 100 m² construidos y tenga esta calidad de distribución. Si tienes dudas sobre la rentabilidad esperada, puedes Contactar con nosotros
6. Mitos y Realidades sobre las Plantas Bajas
Planta baja reformada en venta en el Cabanyal
Es posible que tengas dudas sobre vivir a pie de calle. Sin embargo, el diseño de esta vivienda rompe los tópicos.
¿Privacidad? El recibidor actúa de barrera visual. Nadie ve el interior de tu casa cuando abres la puerta.
¿Espacio? Con casi 50 m² de salón, tienes más espacio social que en la mayoría de áticos de la zona.
¿Exteriores? Sumando el Patio 1 y el Patio 2, dispones de más de 20 m² de superficie al aire libre de uso exclusivo.
7. Proceso de Compra Transparente
Al gestionar la comercialización de esta planta baja reformada en venta en el Cabanyal desde nuestra inmobiliaria, te ofrecemos un proceso claro:
Visita con Plano: En la visita, te explicaremos in situ las posibilidades de amueblamiento del gran salón.
Documentación al día: Disponemos de toda la documentación técnica de la reforma.
Financiación: Te orientamos sobre las mejores opciones.
Notaría: Te acompañamos hasta la entrega de llaves.
8. Preguntas Frecuentes (FAQ)
Aquí resolvemos las dudas más habituales sobre esta planta baja reformada en venta en el Cabanyal:
¿Los patios son comunitarios? Si, pero tanto el Patio 1 (junto a salón y cocina) como el Patio 2 (junto a la habitacion principal) son de uso privativo de esta vivienda según consta en el plano
¿Cabe una mesa grande en el salón? Absolutamente. Con 49.71 m², puedes colocar una zona de sofás en “L”, una mesa de comedor para 8-10 personas y aún te sobrará espacio para una isla de cocina o rincón de lectura.
¿La habitación de la entrada es ruidosa? La Calle Ramón de Rocafull tiene un tráfico moderado, además, la carpintería nueva ofrece un gran aislamiento.
¿Se puede visitar ya? Sí, la vivienda está lista para visitas.
Agenda tu visita hoy mismo
Las oportunidades de tener 50 m² de salón y dos patios en el Marítim son casi inexistentes. Si buscas diseño y amplitud, esta planta baja reformada en venta en el Cabanyal es única en su categoría.
No dejes que te lo cuenten. Ven a ver el espacio real.